Tussenwoning Waterdorp Paal 9

In aanbouw / bewoond

Omschrijving

Deelplan de Laak ligt aan de rand van Vathorst. De Laak is een moderne grachtenstad gekenmerkt door kades met veel water met fraaie architectuur. Waterdorp is een nieuw deelgebied. Kades hebben hier plaatsgemaakt voor groenere oevers en overtuinen. Groen in de voortuinen met mooie groene lanen en singels.
In aanbouw / bewoond

Tussenwoning Waterdorp Paal 9

ca. 107 - 139 m2
4 - 5 kamers
Tuin
dorpsleven

Overzicht wordt geladen..

Downloads

Verkoopstuk

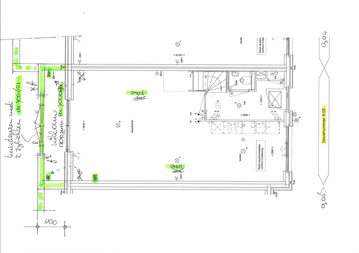
blok tekeningen bwnr 9.01 t/m 9.05 beg gr

Verkoopstuk

blok tekeningen bwnr 9.01 t/m 9.05 1e en 2e verd

Verkoopstuk

blok tekeningen bwnr 9.09 t/m 9.13 beg gr

Verkoopstuk

blok tekeningen bwnr 9.09 t/m 9.13 1e en 2e verd

Verkoopstuk

blok tekeningen bwnr 9.18 t/m 9.21 beg gr

Verkoopstuk

blok tekeningen bwnr 9.18 t/m 9.21 1e en 2e verd